Projeto Inicial do arquitetônico

Tem um terreno, e não sabe por onde começar?  


Deixe conosco! Desenvolvemos todo projeto inicial da loja!
Projetamos o croqui do arquitetônico, layout de equipamentos e fachada, sempre pensando na harmonia entre eles.
Fazemos todo detalhamento da estrutura da loja para orçamentos.

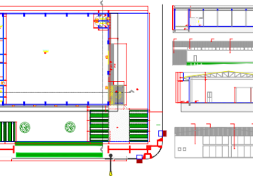
Layout

Projetamos todo layout da loja, com estudo de fluxos de clientes e funcionários.

Projetamos também toda área da retaguarda, escritórios, banheiros, depósito, estacionamento.

Detalhamento de equipamentos em geral

Projetos de detalhamento de todos os equipamentos da área de vendas, preparos, câmaras e depósito.

Departamentalização

Está em dúvida onde vai os produtos nas gôndolas?

Com o projeto de departamentalização, indicamos quais produtos irão em cada setor, sempre pensando

no fluxo de compras da loja.

Projetos técnicos

Não quer errar na execução da obra, e ter gastos desnecessários?

Projetamos todos os pontos de elétrica, lógica, drenos, água e demais necessários,

e detalhamos para execução pelos profissionais na obra. 


Projeto de Comunicação Visual

A sua loja merece um ambiente moderno e aconchegante!


Projetamos toda comunicação visual da loja. Desenvolvemos o projeto de iluminação, placas, cores, piso, revestimentos.

O projeto é todo detalhado, para envio as empresas para orçamentos, fabricação e montagem.

Fachadas

A primeira impressão é a que fica!

Desenvolvemos projetos de fachada em 3D, com imagens e vídeos.

Projetos feitos com muitos detalhes, estudos de iluminação, cores, paisagismo..

Detalhamos todo o projeto, para as empresas orçar, fabricar e montar.

Assessoria em equipamentos

Trabalho de Assessoria junto ao cliente na compra dos equipamentos, visando uma negociação junto aos fornecedores sem erros e compras desnecessárias.